
Hay ocasiones en las que el diálogo permanente y el buen entendimiento entre arquitecto y cliente permite búsquedas de nuevos caminos en lo que respecta al uso de formas, distribución del espacio y materiales. Éste es el caso del apartamento que nos ocupa, situado en un edificio de nueva construcción en la ciudad de Barcelona, en el barrio de Les Corts, en la calle Berlín.
La vivienda fue comprada sobre plano por el propietario, un profesional que vive solo, que encargó el proyecto al arquitecto Xavier Claramunt. En origen se trataba de un piso convencional, de algo más de cien metros cuadrados, distribuidos en cuatro dormitorios, un salón, cocina y baños.
La transformación se realizó a partir de que el cliente expresara la necesidad de habitar en un espacio con otra distribución que realmente respondiera a sus necesidades, muy distintas a la de una familia convencional, para quien estaba concebida la distribución original del apartamento. Lo que el cliente quería era una estancia central diáfana y única.
Para lograr ere interior “limpio”, el proyecto concentra la cocina, los baños y rincones de almacenaje dentro de una caja cerrada con una singular secuencia de puertas de plástico correderas. Éstas permiten cerrar o abrir completamente la comunicación de esas estancias con el estar-comedor, espacio protagonista de la vivienda, sereno y diáfano como el cliente deseaba. El carácter traslúcido de dichas puertas ha permitido jugar con la entrada de luz desde dentro de la “caja” hacia el estar, lo que singulariza el espacio y potencia las posibilidades expresivas de los materiales.
Desde el acceso a la vivienda, queda a la derecha un muro de plástico ondulado, que constituye parte de las secuencias del citado cerramiento, que avanza y dobla el ángulo. A la izquierda de este paramento, una puerta conduce al cuarto de invitados.
Por su parte, el salón y el dormitorio principal lindan con los ventanales que dan a la calle Berlín, orientados al oeste, a la puesta de sol, lo que proporciona una cálida luz al caer la tarde.
El elemento más destacado del proyecto es la elección del plástico para la resolución de la separación de espacios en la vivienda, lo que anula el sistema de tabiquería tradicional. Se ha intentado con ello singularizar la idea de espacio doméstico, huyendo de convencionalismos. Todo el plástico es blanco y ondulado, a excepción del que cierra los armarios del dormitorio y continúa formando la separación entre dormitorio y baño, que es de un color azul muy intenso, brillante y de textura lisa.
Con esta intervención se crea un juego entre el material y la luz, generando un interior marcado por una cierta informalidad. La imagen moderna y de gran expresividad del plástico dialoga con la superficie del suelo de madera oscura de jatoba, que aporta calidez al ambiente. En la idea original del proyecto se apostó por un suelo de caucho negro, que incidía en la idea de ambiente industrial y daba mayor contraste, que finalmente no prosperó.
La cocina, con un pequeño espacio en el que sitúa una mesa auxiliar, está iluminada por un ventanal y una puerta que tiene salida a la galería, donde se ubica el lavadero. Los armarios de la cocina se han elegido de plástico blanco con puertas azules. Suelo y paredes están alicatados con el mismo tipo de losetas blancas mates.
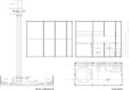
Comunicado con el dormitorio, el baño principal está definido en torno a una parte central que ocupa la bañera. De cierta inspiración en los baños grecorromanos, esta bañera se ha revestido en toro su perímetro de azulejo blanco brillante, configurando una caja de marcada geometría. Una mampara corredera, del mismo plástico blanco translúcido y ondulado, independiza la ducha y el inodoro. Las paredes y suelos se han alicatado con losetas blancas, que parecían las más adecuadas para redundar en la sencillez y continuar con el bicromatismo del blanco y el azul que reina en el resto de la vivienda. Este baño está totalmente independizado del resto de las estancias y tiene acceso únicamente desde el dormitorio, o que le dota de la necesaria privacidad. El blanco es el color dominante en todo el espacio; techo, paredes y baldosas de baños y cocina refuerzan la sobriedad marcada por el plástico y las mamparas. El color azul del mobiliario de cocina y de las puertas correderas del armario del dormitorio aportan el contraste cromático.




















